Search
Shed Search Filters
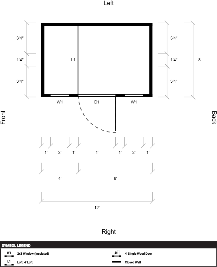
Side Lofted Barn 8x12$5,108.25
$5,108.25
In stock 8 x Unknown length | Bunnell, FL

Sold by:
CnJ Storage Solutions

Side Lofted Barn 8x12
What's included
Buy today for only
$5,108.25
OR $187.80 / mo
Contact Shed Dealer
View Sellers Other Listings









