Search
Shed Search Filters
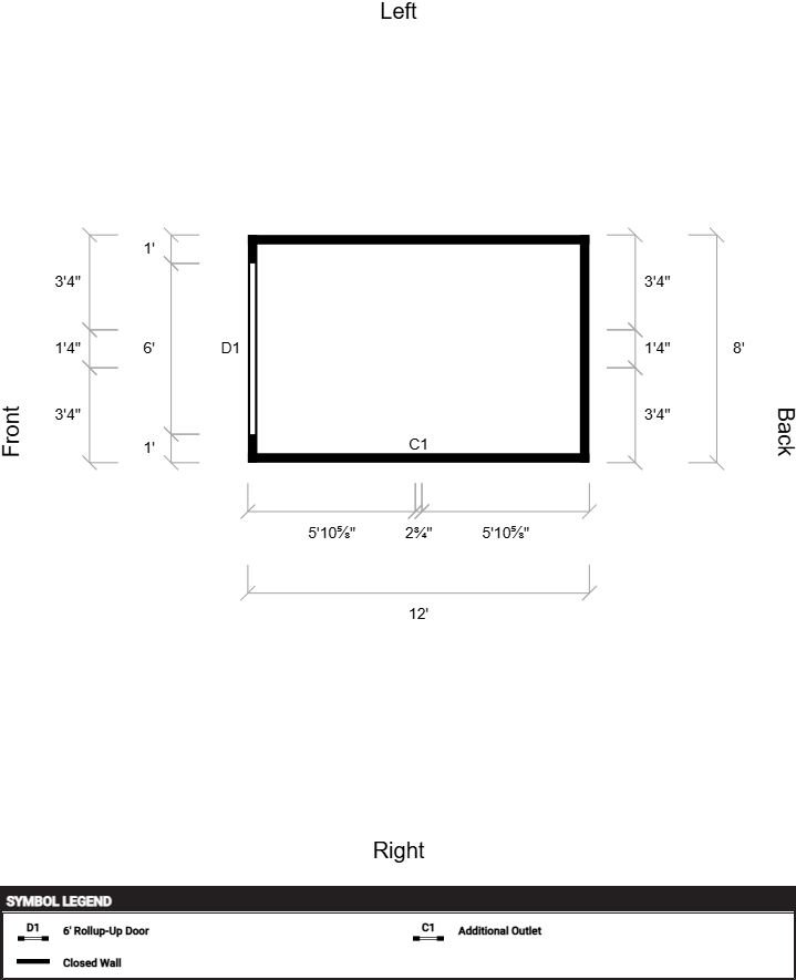
Garden Shed 8x12$4,688.37
$4,688.37
In stock 8 x Unknown length | Bunnell, FL

Sold by:
CnJ Storage Solutions

Garden Shed 8x12
What's included
Buy today for only
$4,688.37
OR $172.37 / mo
Contact Shed Dealer
View Sellers Other Listings










