Search
Shed Search Filters
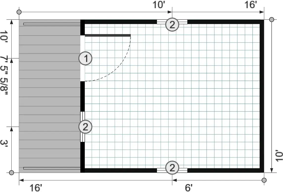
10x16 A-Frame Cabin Shed for Hobby & Tool Storage in Great Falls, MT$9,512.00
$9,512.00
Built to order 10 x 16 | Great Falls, MT

Sold by:
Montana Shed Center

Introducing the Cabin 10x16 shed from Montana Shed Center, your ultimate solution for outdoor storage in Great Falls, MT. This durable shed combines functionality with aesthetic appeal, making it an ideal addition to your backyard. With its charming design and quality construction, this shed is perfect for storing gardening tools, outdoor equipment, or even transforming into a cozy workspace.
Key Features:
- Spacious 10x16 dimensions provide ample storage space for all your outdoor needs.
- A-frame roof design not only enhances the shed's visual appeal but also ensures superior water drainage and durability.
- Constructed with LP Smart Side Vertical Panels, this shed is built to withstand the elements, providing you with peace of mind for years to come.
- Metal roofing in sleek black adds a modern touch while offering excellent weather resistance.
- Customizable options include a 3' steel entry door with half glass, multiple vinyl windows for natural light, and a charming porch for added functionality.
- Enjoy free delivery within a 50-mile radius, making it easier than ever to enhance your outdoor space.
The Cabin 10x16 shed is more than just a storage solution; it’s a versatile space that can be used for various purposes. Whether you need a dedicated area for gardening supplies, a workshop for DIY projects, or a serene retreat for relaxation, this shed meets all your needs. Its attractive iron grey siding and white trim not only elevate your property’s curb appeal but also ensure it stands out in your neighborhood.
Investing in a durable shed from Montana Shed Center means investing in quality and longevity. Located at 2502 Vaughn Rd, Great Falls, MT, we are committed to providing you with exceptional service and products that enhance your outdoor living experience. For inquiries, reach out to us at Anthony@montanashedcenter.com or call +1 4067992679.
Transform your outdoor storage experience with the Cabin 10x16 shed from Montana Shed Center, where quality meets functionality in Great Falls, MT.
What's included
Buy today for only
$9,512.00
Contact Shed Dealer
View Sellers Other Listings







